元設計事務所所有で、内装キレイな希少物件
古民家暮らしに憧れるものの、ネックになるのは水回り、そして内装。どうしても素人DIYでは限界が…でもいい感じの家にしたい!そんな人にぴったりの物件が登場です。築70年、2LDKの平屋ですが、前オーナーが店舗設計会社であったため、古民家の雰囲気を絶妙に残しながら、水回りや床、壁、そして間取りも素敵にリフォーム済み。ただし天井に少々難ありのため、住むには天井工事は必須とのこと。内装はさることながら立地もよく、目の前には海がありロケーション最高。無駄のない間取りで住居としてはもちろん、別荘などにもおすすめの一件です。
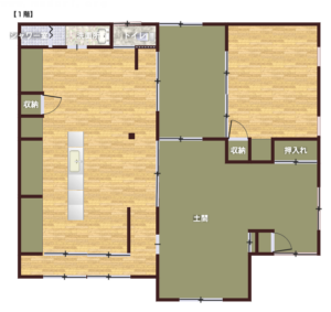
土間が広々、店舗にも良さそうな間取り
玄関を開けるとすぐに広い土間が。天井を抜いているので天井が高く開放感のあるつくりにリフォームされています。(しかしながら土埃が落ちてくることもあるので、天井工事は必要)古民家ならではの圧迫感のある壁がない分、広々と使えること、柱の部分を工夫して収納や飾り棚にしてもいいかも・・・などと想像を掻き立てられます。古き良き建具などは生かしつつ、トイレやアイランドキッチンなど気になる水回りは現代のものになっているのはとってもありがたい物件。浴槽はありませんが使い勝手の良いシャワールームがあります。
海が近く、場所もわかりやすい便利な立地
由良港から車で5分。駐車場はありませんが周辺に駐車可能な広場があります。敷地内に家庭菜園ができるスペースあり。目の前が海岸で、S U Pや釣りを楽しむことができるのが嬉しいポイント。特に静かな地域なので穏やかに過ごしたい方にはピッタリ。島暮らしをしたい方、島にも拠点を持ちたいという方におすすめです。
※延べ床、築年数などは正確な情報がつかめないため、目安の数字を記載しています。
*市街化調整区域、その他の要件により、賃借、購入は可能でも、建替が困難な場合があります。ご注意ください。詳しくは離島の空き家 ご利用にあたっての注意をご確認下さい。
*市街化調整区域、その他の要件により、賃借、購入は可能でも、建替が困難な場合があります。ご注意ください。詳しくは離島の空き家 ご利用にあたっての注意をご確認下さい。




























